Home › Unlabelled ›
House Plans Split Level / Split Level Home Plans And Raise Ranch House Plans : Choose your split level house and floor plans for just $49.95 including unlimited use today.
House Plans Split Level / Split Level Home Plans And Raise Ranch House Plans : Choose your split level house and floor plans for just $49.95 including unlimited use today.. These models are attractive to those wishing to convert their basement into an apartment or to create a games room, family room. The top floor usually features the living areas. The entry is usually located between the basement level and the upper level with stairs going to each level. House building plans available, categories include hillside house plans, narrow lot house plans, garage apartment plans, beach house plans, contemporary house plans, walkout basements, country house plans, coastal house plans, southern house plans split level. An abundance of space is perhaps the most compelling, as the homes are especially popular among homebuyers with children.
An abundance of space is perhaps the most compelling, as the homes are especially popular among homebuyers with children. Frequently you will find living and dining areas on the main level with bedrooms located on an upper level. The entry is usually located between the basement level and the upper level with stairs going to each level. Modern split levels seen from the exterior and interior are bringing the look back with a twist. Split foyer house plans provide lots of charm, in that they have several levels.
Bi Level House Plans Split Entry Raised Home Designs By Thd from www.thehousedesigners.com Split level homes offer living space on multiple levels separated by short flights of stairs up or down. Opportunities for unique décor and interior design. If you're considering building your own home, you're likely going to have some questions. Typically, the main level contains the living areas: V house / giancarlo mazzanti + plan:b arquitectos. Discover our unique split level home designs, made to suit any location. Land size is 30 feet by 50 feet. Split level house plans are economical house plans to build.
Split level house plans offer many benefits.
Thousands of house plans, over 130 architects. Split level house plans offer many benefits. These models are attractive to those wishing to convert their basement into an apartment or to create a games room, family room. Modern split levels seen from the exterior and interior are bringing the look back with a twist. Your split level house plan specialists in sydney, newcastle & central coast. Typically, the main level contains the living areas: Once you've bought your house and floor plan, you'll own the copyright as well. Find the perfect sloping site home for you. Split foyer house plans provide lots of charm, in that they have several levels. House building plans available, categories include hillside house plans, narrow lot house plans, garage apartment plans, beach house plans, contemporary house plans, walkout basements, country house plans, coastal house plans, southern house plans split level. Notice how the lower level houses the kitchen, the dining room and the. It's also a place where you may want to gather friends and. The various spaces of a.
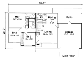
If you're considering building your own home, you're likely going to have some questions. Choose your split level house and floor plans for just $49.95 including unlimited use today. The middle level of the house plan often contains the living and dining area, the upper level holds the bedrooms, and the lower lever typically features a finished family room and garage. With split level designs, you get the most out of what is available to you and have the ability to upgrade and adapt your home in. Your dedicated split level home builders in newcastle, sydney,the central coast & the hunter.
Split Level House Designs The Plan Collection from www.theplancollection.com Modern split levels seen from the exterior and interior are bringing the look back with a twist. The relaxed and informal split level house plan caters to growing families, with separate spaces for daily activities. It's also a place where you may want to gather friends and. The middle level of the house plan often contains the living and dining area, the upper level holds the bedrooms, and the lower lever typically features a finished family room and garage. One small flight of stairs leads up to the top floor, while another short set of stairs leads down. The relaxed and informal split level house plan caters well to growing families, since the multiple levels allow family members to carry on different activities in different areas of the house without disturbing. Notice how the lower level houses the kitchen, the dining room and the. If you're considering building your own home, you're likely going to have some questions.
House building plans available, categories include hillside house plans, narrow lot house plans, garage apartment plans, beach house plans, contemporary house plans, walkout basements, country house plans, coastal house plans, southern house plans split level.
Choose your split level house and floor plans for just $49.95 including unlimited use today. The various spaces of a. Find the perfect sloping site home for you. The entry is usually located between the basement level and the upper level with stairs going to each level. We've gathered and answered the questions. Discover our unique split level home designs, made to suit any location. Outdoor living can be enhanced, for example, by a patio off of the living room on the main level and a deck from the kitchen on the second floor. Split level house plans from 84 lumber will help you maximize your living space with proven designs that allow you easy access to all of your important living areas. Your dedicated split level home builders in newcastle, sydney,the central coast & the hunter. Split level house design plans feature homes that have multiple features on different floors, including entries from separate floors. The relaxed and informal split level house plan caters to growing families, with separate spaces for daily activities. Typically, the main level contains the living areas: Our collection of split level house plans available for sale at advancedhouseplans.com.
Your split level house plan specialists in sydney, newcastle & central coast. It has multiple floor levels which are staggered. There are typically two short sets of stairs. Land size is 30 feet by 50 feet. Split level house design plans feature homes that have multiple features on different floors, including entries from separate floors.
Split Level House Plans Designs The Plan Collection from www.theplancollection.com The relaxed and informal split level house plan caters well to growing families, since the multiple levels allow family members to carry on different activities in different areas of the house without disturbing. Choose your split level house and floor plans for just $49.95 including unlimited use today. Your dedicated split level home builders in newcastle, sydney,the central coast & the hunter. Outdoor living can be enhanced, for example, by a patio off of the living room on the main level and a deck from the kitchen on the second floor. We know that your home is your sanctuary, your place to unwind. If you're considering building your own home, you're likely going to have some questions. Thousands of house plans, over 130 architects. V house / giancarlo mazzanti + plan:b arquitectos.
One small flight of stairs leads up to the top floor, while another short set of stairs leads down.
Split level house design plans feature homes that have multiple features on different floors, including entries from separate floors. We know that your home is your sanctuary, your place to unwind. One small flight of stairs leads up to the top floor, while another short set of stairs leads down. Modern split levels seen from the exterior and interior are bringing the look back with a twist. Split level house plans offer many benefits. The relaxed and informal split level house plan caters to growing families, with separate spaces for daily activities. Your dedicated split level home builders in newcastle, sydney,the central coast & the hunter. Your split level house plan specialists in sydney, newcastle & central coast. Split level homes offer living space on multiple levels separated by short flights of stairs up or down. Split level house designs and floor plansin this video, i have explained split level 3 bedroom house design and floor plans. The kitchen, the dining room and family room and usually has two short sets of stairs. The middle level of the house plan often contains the living and dining area, the upper level holds the bedrooms, and the lower lever typically features a finished family room and garage. There are typically two short sets of stairs.